Property ID : CA2142
For Sale 96.000€ - House, Residential
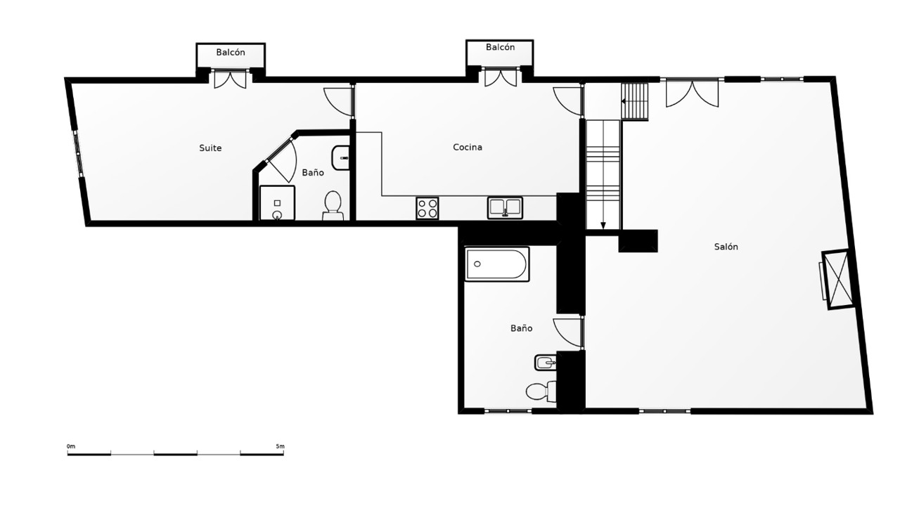
House in Lubrín, distributed over two floors. On the ground floor, there is a very spacious living-dining room with a fireplace, a kitchen, a bathroom, and a bedroom with an en-suite bathroom. Upstairs, there are two bedrooms, both with balconies.
The sale price does not include notary fees, registration fees, or taxes.
English
















